Appartamenti bilocale in vendita , Oppeano, località Ca' degli Oppi

Veneto Verona Oppeano Ca' degli Oppi via Croce

Prezzo

€ 145.000

Nuovo residence " Viktoria"
Rif.: 3035/Bil/opp

  • Vendita
  • Contratto
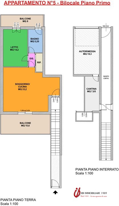
  • 75 m²
  • Superficie
  • 2
  • Locali
  • 1
  • Camere
  • 1
  • Bagni
  • Veneto
  • Regione
  • Verona
  • Provincia
  • Oppeano
  • Comune
  • Ca' degli Oppi
  • Località

Stai cercando una nuova casa nel cuore di Ca' degli Oppi? Allora non perdere l'opportunità di vivere nel nuovissimo residence Viktoria. Progettato per offrire il massimo comfort e privacy, questo piccolo complesso residenziale è composto da appartamenti di 2 e 3 locali, tutti dotati di ingresso indipendente e ampio giardino privato. Potrai godere di una zona giorno spaziosa, una camera da letto accogliente e un bagno moderno. Inoltre, alcuni appartamenti sono dotati di terrazzo e cantina, mentre altri vantano un doppio garage in larghezza. Non solo, al piano superiore troverai appartamenti su due livelli con 3 camere da letto e 2 bagni, perfetti per le famiglie più numerose. Il residence è progettato secondo gli standard più moderni e sarà pronto nel 2026. Non perdere l'occasione di vivere in un ambiente esclusivo, contattaci per avere maggiori informazioni e prenotare una visita presso i nostri uffici. Scegli il meglio per te e la tua famiglia, scegli Residence Victoria!

  • Classe Energetica
  • Emis. Q. Zero

Caratteristiche

Condizioni: Prossima costruzione
Riscaldamento: Autonomo
Parcheggio: Garage
Giardino m2: No
Piano: Piano Terra - piani edificio: 2
Cucina: Angolo cottura
Arredato: Non Arredato
Terrazzo: Si
Balcone: No
Anno di Costruzione: 2026
Condizionatore: Predisposizione impianto
Porta blindata
Sanitari sospesi
Tapparelle in alluminio
gres porcellanato
Porte a battenti
Predisposizione aria condizionata
Zanzariere
Tapparelle motorizzate
Impianto fotovoltaico
impianto elettrico a sezioni

Mappa

Immobili Correlati

Vendita
Nuovo residence " Viktoria"
Nuovo residence " Viktoria"
Nuovo residence " Viktoria"
Nuovo residence " Viktoria"
Nuovo residence " Viktoria"
Nuovo residence " Viktoria"
€ 149.000

Appartamenti bilocale in vendita , Oppeano, località Ca' degli Oppi

Nuovo residence " Viktoria"

Veneto Verona Oppeano Ca' degli OppiRif. 3038/Bil/opp

stai cercando una nuova casa nel cuore di ca' degli oppi? allora non perdere l'opportunità di vivere nel nuovissimo residence…

  • Superficie75 m²
  • locali2
  • camere1
  • bagni1
  • classe energetica
Vendita
Nuovo residence " Viktoria"
Nuovo residence " Viktoria"
Nuovo residence " Viktoria"
Nuovo residence " Viktoria"
Nuovo residence " Viktoria"
Nuovo residence " Viktoria"
€ 155.000

Appartamenti bilocale in vendita , Oppeano, località Ca' degli Oppi

Nuovo residence " Viktoria"

Veneto Verona Oppeano Ca' degli OppiRif. 3034/Bil/Opp

stai cercando una nuova casa nel cuore di ca' degli oppi? allora non perdere l'opportunità di vivere nel nuovissimo residence…

  • Superficie75 m²
  • locali2
  • camere1
  • bagni1
  • classe energetica
Vendita
Nuovo residence " Viktoria"
Nuovo residence " Viktoria"
Nuovo residence " Viktoria"
Nuovo residence " Viktoria"
Nuovo residence " Viktoria"
Nuovo residence " Viktoria"
€ 165.000

Appartamenti bilocale in vendita , Oppeano, località Ca' degli Oppi

Nuovo residence " Viktoria"

Veneto Verona Oppeano Ca' degli OppiRif. 30317bil/opp

stai cercando una nuova casa nel cuore di ca' degli oppi? allora non perdere l'opportunità di vivere nel nuovissimo residence…

  • Superficie75 m²
  • locali2
  • camere1
  • bagni1
  • classe energetica
Invia la tua ricerca all'agenzia

Descrivi l'immobile che cerchi e invia la ricerca all'agenzia.

Proponi il Tuo Immobile

Proponi il tuo immobile alla nostra agenzia.

Newsletter Immobiliare

Ricevi le nostre proposte immobiliari direttamente nella tua email!

Benvenuto! Clicca su uno dei nostri assistenti per inviare un messaggio, vi risponderanno il prima possibile.

Chat via WhatsApp