Appartamenti trilocale in vendita , Oppeano, località Ca' degli Oppi

Veneto Verona Oppeano Ca' degli Oppi Via Croce

Prezzo

€ 195.000

Res Viktoria - trilocali
Rif.: 3032/tri/opp

  • Vendita
  • Contratto
  • 95 m²
  • Superficie
  • 3
  • Locali
  • 2
  • Camere
  • 2
  • Bagni
  • Veneto
  • Regione
  • Verona
  • Provincia
  • Oppeano
  • Comune
  • Ca' degli Oppi
  • Località

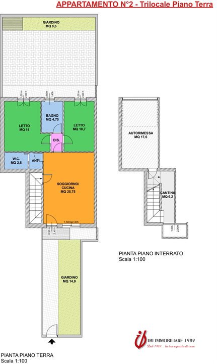
Res Viktoria - Il complesso residenziale dei tuoi sogni. In una posizione privilegiata nel cuore di Ca' degli Oppi (Fraz di Oppeano), sorge il Residence Viktoria. Questo nuovo progetto immobiliare offre appartamenti di alta qualità, perfetti per una vita comoda e rilassante. Ogni abitazione, sia al piano terra che al primo piano, ha un ingresso indipendente per garantire la massima privacy. Gli appartamenti al piano terra vantano ampi giardini, ideali per godere dei momenti all'aperto, un'ampia zona giorno, una camera matrimoniale e un bagno, oltre ad un terrazzo retrostante. Al piano interrato, collegato da una scala dalla zona giorno, sono presenti una cantina di 28 mq e un garage di 30 mq. Al piano terra ci sono anche due trilocali con giardino e terrazzo retrostante, entrambi con accesso diretto dalla zona giorno alla cantina e al garage. Al piano superiore, ci sono due bilocali con ampi terrazzi, e due appartamenti su due livelli con tre camere da letto, doppi servizi e un ampio terrazzo. Non perdere l'opportunità di visitare questo splendido residence, i progetti sono disponibili presso i nostri uffici. Non lasciarti sfuggire questa occasione unica! Prezzo: € 195.000 Piano terra.

  • Classe Energetica
  • Emis. Q. Zero

Caratteristiche

Condizioni: Prossima costruzione
Riscaldamento: Autonomo
Parcheggio: Garage
Giardino m2: Privato
Piano: Piano Terra - piani edificio: 2
Cucina: Angolo cottura
Arredato: Non Arredato
Terrazzo: Si
Balcone: No
Anno di Costruzione: 2026
Condizionatore: Predisposizione impianto
Serramenti in PVC doppio vetro
Zanzariere
Porte a battenti
gres porcellanato
Tapparelle in alluminio
Cancello elettrico
Sanitari sospesi
Porta blindata

Mappa

Immobili Correlati

Vendita
Res Viktoria - trilocali
Res Viktoria - trilocali
Res Viktoria - trilocali
Res Viktoria - trilocali
Res Viktoria - trilocali
€ 190.000

Appartamenti trilocale in vendita , Oppeano, località Ca' degli Oppi

Res Viktoria - trilocali

Veneto Verona Oppeano Ca' degli OppiRif. 3033/tri/opp

res viktoria - il complesso residenziale dei tuoi sogni. in una posizione privilegiata nel cuore di ca' degli oppi (fraz di oppeano),…

  • Superficie95 m²
  • locali3
  • camere2
  • bagni2
  • classe energetica
Invia la tua ricerca all'agenzia

Descrivi l'immobile che cerchi e invia la ricerca all'agenzia.

Proponi il Tuo Immobile

Proponi il tuo immobile alla nostra agenzia.

Newsletter Immobiliare

Ricevi le nostre proposte immobiliari direttamente nella tua email!

Benvenuto! Clicca su uno dei nostri assistenti per inviare un messaggio, vi risponderanno il prima possibile.

Chat via WhatsApp